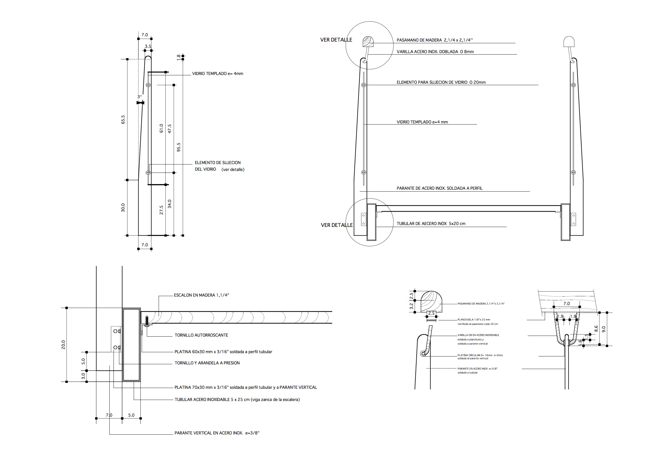
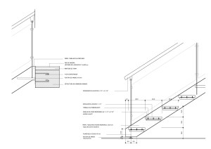
Detalles para una Escalera February 3, 2013 · by Roberta Techera · in Diseño de Interiores. · Related