Año 2002. De mis primeros proyectos de diseño.
Transformación de un local comercial en un Café y bar, en un proyecto de muy bajo presupuesto.
La propuesta exigía soportar flexibilidad horaria, dinamismo en el uso, elegancia para ser soporte de distintos eventos sociales, musicales, exposiciones, etc.
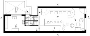
Se propone máxima utilización espacial de 50 m2 en sub espacios bien diferenciados.
Utilización de colores aptos, o cómodos para los clientes tanto durante el día, como en la noche;
en conjunto con el reciclaje de muebles y objetos.
Se utilizan materiales económicos tales como maderas recicladas, láminas de offset, conglomerados tipo durabord, vidrios usados, etc
Presentation for a flyer . (English)
It is a bar/pub proposal with strong urban character, for being in the historical center of the city, area that at the moment presents constant flow of people and activities. During the day at administrative level, during the night at recreational level, and continually at cultural level. The proposal intends to satisfy the expectations of the different profiles of clients, during day and night.
A “living“ sector, where magazines can be read while drinking a cup of cooffee and enjoing the view of the old buildings in the sorrounds.
A “snack” sector, that counts individually with illuminated tables, and long sofa designed especially for the place, where you can eat or have some drink, during the rest of the work at the office. Or at night enjoying the music selected by a DJ from the music’s booth.
And the “bar“ sector, to enjoy alone or accompanied.
The aesthetics of the place follows the regional design tendencies regarding materials in terminations, colors, illumination and furniture, jointly with the proposal of musical atmosphere.






