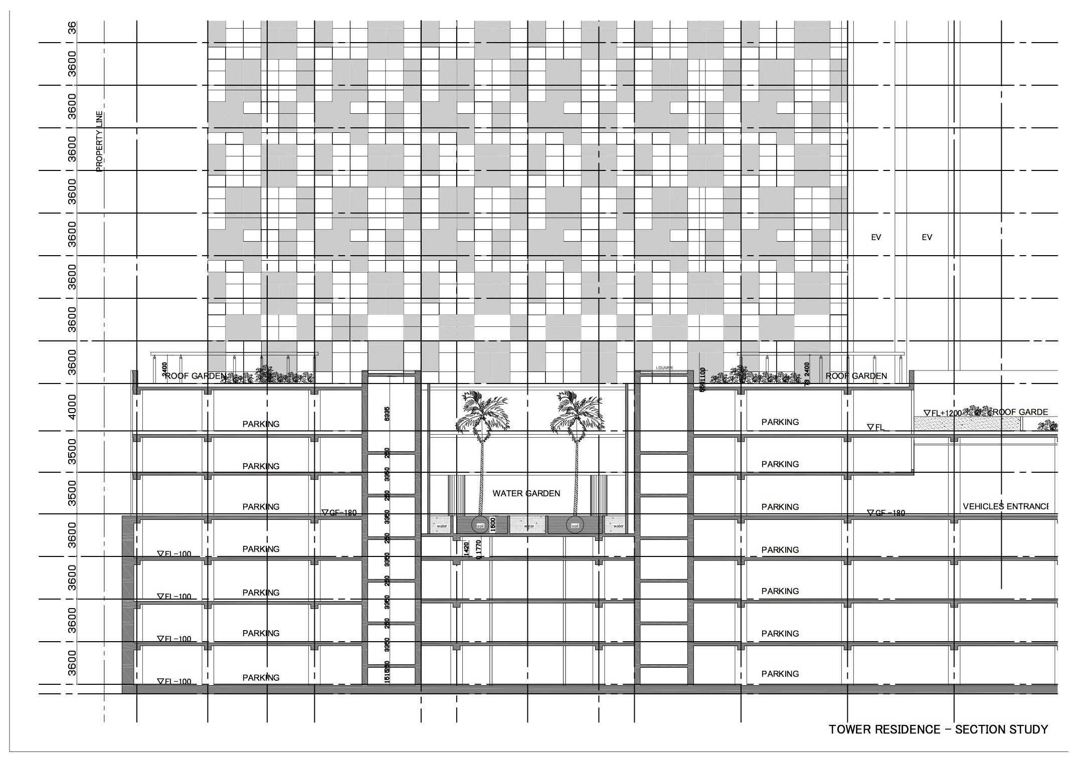
Los cortes o secciones son junto con las plantas las piezas con más información en un anteproyecto. En la etapa de diseño no debemos olvidar que un corte debe haber también el mismo equilibrio compositivo que en plantas y fachadas. Este es un ejmplo de estuido de secciones para un torre residencial en Dubai.



