En los casos de Remodelación, se releva y evalúa lo existente, identificando los elementos que aportan o podrían aportar al espacio, para así mantenerlos.
Luego de hablar y conocer lo que el cliente desea, o por donde va su “gusto” se plantea un diseño acorde. A través de planos esquemáticos, sketches e imágenes que puedan representar la idea a la cual se pretende llegar.
A ésta etapa llamamos diseño conceptual. No hay exactitud en las medidas, ni los materiales están absolutamente definidos.
Los costos son estimados en base a parámetros preestablecidos según el área a remodelar/construír y el tipo o categoría de la construcción.
1. Propuesta
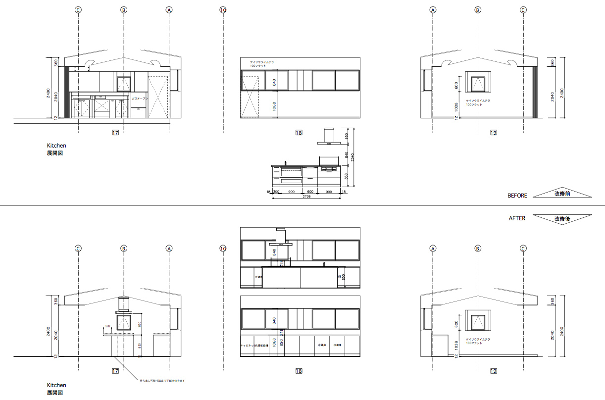
Ésta remodelación se hizo en equipo con un colega japonés trabajando para el estudio de Endo-san. La construcción databa de los años 90, y el lugar lucía ostentoso y recargado. Seguramente la bubble economy del Japón de esa época había influído.
Se propone descongestionar el espacio. Alivianarlo. Reduciendo el número y tamaño de las paredes, y agregando transparencia por medio de vidrios y otros materiales traslúcidos como telas, y papel.
Se logra simplificar la planta y conectar más con, o ayudar a percibir más el espacio exterior.
Las terrazas dan a un gran patio verde al interior del edificio.





