Ubicación: Balneario Punta Rubia, Rocha. Uruguay.
Área del predio: 600 m2
Área a construír: 120 m2
Sistema Constructivo: Mixto.
Fundaciones: Patines de Hormigón.
Estructura: Acero
Paredes y techo: Sistema Steel Framing revestido en madera al exterior.
Revestimiento interior en yeso
Éste proyecto es muy particular, ya que el cliente solicita una casa con forma de establo. Un establo tradicionalmente tiene otros usos, pero ultimamente han surgido tipologías de vivienda contenidas en ésta forma. (MVRDV architects, Buro II)
Otros de los requerimientos era que la casa tuviese desniveles.
Es así que después de varias reuniones y avanzando siempre sin perder de vista las premisas de diseño, llegamos a este feliz resultado para una casa fuera de lo común en nuestro medio.
Croquis previos
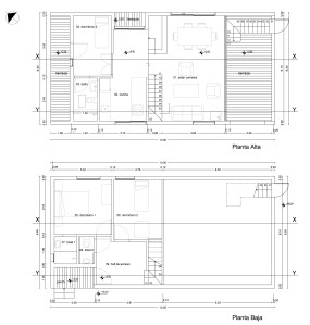
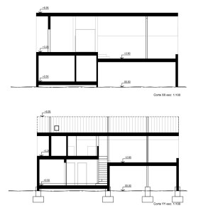
Distribución en planta y cortes











